働く喜びと新しい暮らしを応援!支え合いながら安心して暮らせるグループホーム
\大人気 新築物件/
CARA東宮下は、安心して新生活を始められる環境を整えています。
白を基調とした明るい内装で清潔感にあふれています。
また全室南向きの各居室は8.69㎡とゆとりある広さで、明るい日差しが差し込む快適な空間です。
各所へ飾られた絵画がギャラリーのような雰囲気で心地よさを感じる住環境です。
各居室にはエアコン・ベッド・クローゼットを完備。
共有スペースには大型テレビや冷蔵庫・洗濯機。電子レンジなど生活に必要な家電一式を揃え、すぐに暮らし始められる環境です。
敷地内には27本のブルーベリーが植えられた広い庭があり、たわわに果樹が実り狩り放題!
芝生や縁側ウッドデッキでの団らん、季節の催しも目白押しです。
立地は、バス停『東宮下』から徒歩30秒。東武線「七里駅」から徒歩22分とアクセス良好。
周辺にはスーパー(Big-A)やコンビニ(ローソン)・クリニック・公園があり日常生活に便利な環境が整っています。
施設はオートロック完備で安心のセキュリティ。バリアフリー設計で車椅子にも対応しています。
お風呂とトイレはセパレートタイプで快適にご利用いただけます。
共有スペースにはLDKを備え、入居者様同士が自然と交流できる温かい雰囲気を大切にしています。
CARA東宮下は、安心して新生活を始められる環境を整えています。
白を基調とした明るい内装で清潔感にあふれています。
また全室南向きの各居室は8.69㎡とゆとりある広さで、明るい日差しが差し込む快適な空間です。
各所へ飾られた絵画がギャラリーのような雰囲気で心地よさを感じる住環境です。
各居室にはエアコン・ベッド・クローゼットを完備。
共有スペースには大型テレビや冷蔵庫・洗濯機。電子レンジなど生活に必要な家電一式を揃え、すぐに暮らし始められる環境です。
敷地内には27本のブルーベリーが植えられた広い庭があり、たわわに果樹が実り狩り放題!
芝生や縁側ウッドデッキでの団らん、季節の催しも目白押しです。
立地は、バス停『東宮下』から徒歩30秒。東武線「七里駅」から徒歩22分とアクセス良好。
周辺にはスーパー(Big-A)やコンビニ(ローソン)・クリニック・公園があり日常生活に便利な環境が整っています。
施設はオートロック完備で安心のセキュリティ。バリアフリー設計で車椅子にも対応しています。
お風呂とトイレはセパレートタイプで快適にご利用いただけます。
共有スペースにはLDKを備え、入居者様同士が自然と交流できる温かい雰囲気を大切にしています。
こだわり・特徴
- エアコン
- ベッド付き
- 風呂個別
- 駐輪場
- 駐車場
- オンコール
- Wi-Fi完備
- 感染症対策
- 近隣にスーパー
- 近隣にコンビニ
- 近隣に病院
- 車椅子可
- 流動食・刻み食
- アレルギー対応
- 外出自由
- 敷金・礼金無料
- 体験入居可
- 禁煙
- 女性専用
- イベント充実
- 即入居可
おすすめポイント
- 日当たり抜群で全室南向き、お庭が広く、家庭菜園ができます。
-
新築物件!最新設備で全てが新しくキレイです。
立地は、バス停が近く閑静な住宅地内に立地し、比較的生活に必要な施設が集まっているエリア。
1階は、バリアフリ-で車椅子利用者も移動がしやすいです。
防犯カメラも随所に設置し安心安全な施設。
さらに前面に駐車場があり、ご家族様も訪問しやすくなっております。
- 安心と快適を両立した新しい暮らしを、CARA東宮下で!
-
スタッフの配置は、24時間体制で万が一の時もサポ-ト万全です。
利用者様の皆さまが安心して日々を過ごしていただけるよう、夜間や緊急時にも迅速に対応できる体制を整えています。
日常生活の見守りから個別支援まで丁寧に寄り添い、穏やかで安心感のある暮らしを支えます。
- “もしも”に備えた、ずっと安心できるグループホーム!
-
医療面でも近隣の病院やクリニックと密に連携し、体調不良や緊急時のトラブルにも適切に対応できる環境を確保しています。
定期受診や必要に応じた医療サポートが受けられるため、健康面で不安のある方も安心してご入居いただけます。
利用者様一人ひとりが自分らしく、安心して生活できる“もうひとつの家”を目指して支援しております。
料金プラン
| 洋室(クローゼット付き) | 居室タイプ | 入居時 | 月額利用料 | ||||||
|---|---|---|---|---|---|---|---|---|---|
| 敷金 | 礼金 | その他 | 賃料 | 管理費 | 水道光熱 | 食費 | その他 | ||
| 個室 10.13㎡ |
ー | ー | ー | 50,000円 | ー | 25,000円 | 27,280円 | 13,000円 | |
- プラン
- 洋室(クローゼット付き)
- 居室タイプ
- 個室 10.13㎡
- 敷金
- ー
- 礼金
- ー
- その他(入居時)
- ー
- 賃料
- 50,000円
- 管理費
- ー
- 水道光熱
- 25,000円
- 食費
- 27,280円
- その他(月額)
- 13,000円
料金シミュレーション
入居後の料金シミュレーション計算
| 合計 | 115,280円 |
|---|---|
| 内訳 | 家 賃:50,000円 ※家賃補助(-10,000円)を受けた場合の金額です。 光熱費:25,000円 ※水道代も含まれます。 食 費:27,280円(朝食385円/1食・夕食495円/1食) 日用品 :13,000円(通信費・修繕積立含む) |
こちらの金額はあくまで一例です。食事を食べない等、料金の増減があります。
注意事項
-
※女性専用の物件となります。
※1階のみバリアフリ-。2階へは階段を上る必要があります。
フォトライブラリー

外観①
リビング
居室①
居室②
キッチン
トイレ
多目的トイレ
バス・シャワールーム
洗面台
階段①
階段②

廊下
エントランス

外観②

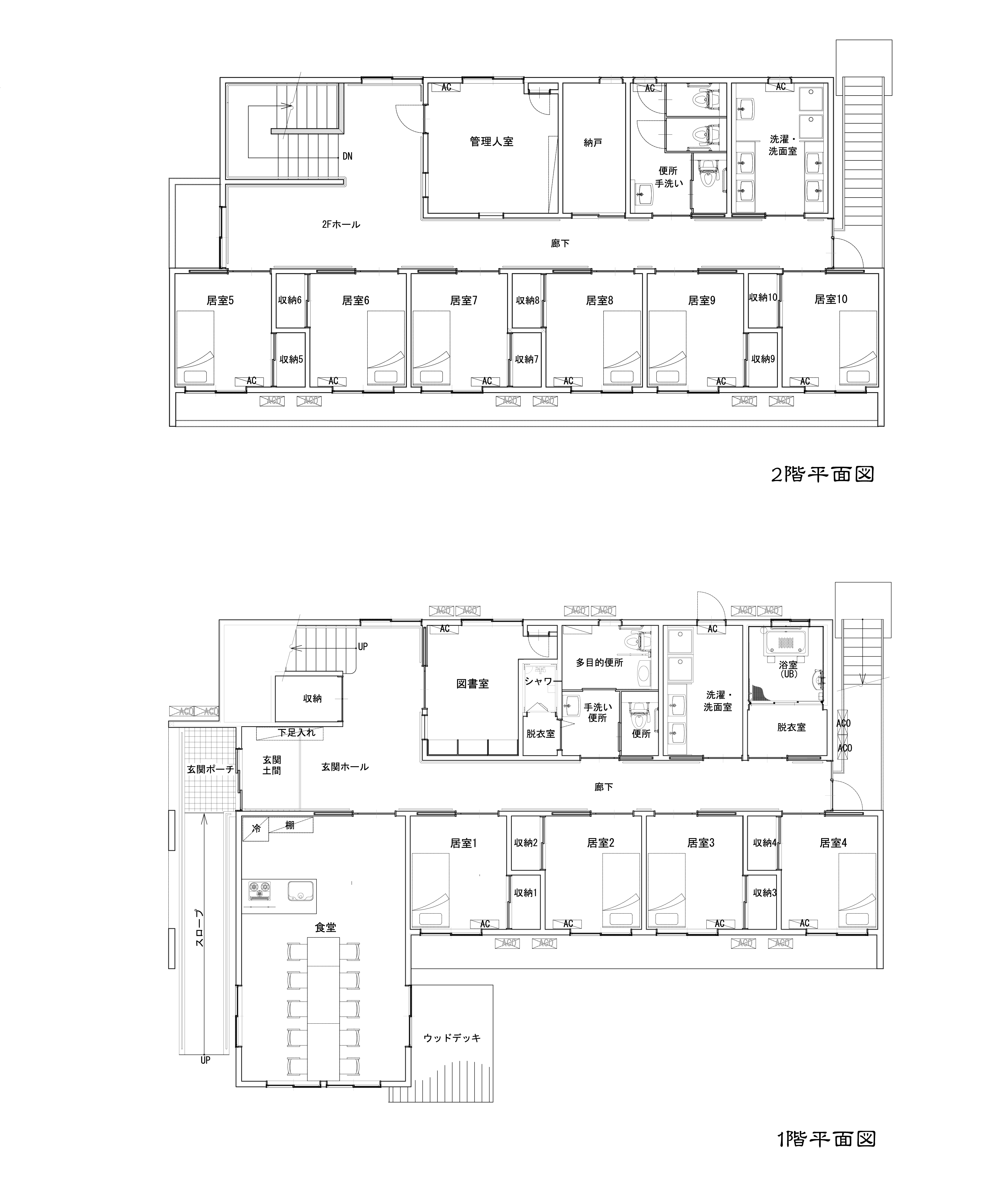
間取り図
1 / 0
物件詳細
- 物件名称
- CARA東宮下
- 物件種別
- その他
- 電話番号
- 090-6705-7358
- 夜勤体制
- 夜勤
- 建物形態
- 共同住居型
- 建物
階層構造 - 木造・2階建て
- 所在地
- 埼玉県さいたま市見沼区東宮下3丁目4-1
- 部屋数
- 5部屋
- 定員
- 5名
- 居室面積
- 10.13㎡(クローゼット収納含む)
- バリアフリー
- 玄関・トイレ(1階)にスロープの設置しバリアフリー化/スロープ・廊下共に1.5mの通路幅を確保/廊下・階段・トイレに手すりを設置/引戸式・丸棒取っ手の配慮/クッション効果のある滑りにくい床材使用
- 開設年月日
- 2025.10.1
- 事業所番号
- 1126518081
- 運営会社
- 株式会社atimo
入居状況
2025年10月1日ニューオープン!見学随時受付中!
アクセス
サテライトの場合は、管理人部屋の所在地になります。
- 物件住所
- 埼玉県さいたま市 見沼区東宮下3丁目4-1
- 最寄り駅
-
東武野田線 七里 から徒歩20分
- 交通手段
- 大宮駅から東武バス『大50系統宮下行き』約17分乗車、バス停『東宮下』より徒歩30秒・東北自動車道『岩槻IC大宮方面』出口より約5分

ユーカリの家
埼玉県/さいたま市 見沼区
0円~/月

いちごみるく
埼玉県/さいたま市 見沼区
0円~/月

おかえり
埼玉県/さいたま市 見沼区
0円~/月

かえるの家
埼玉県/さいたま市 見沼区
0円~/月

青いりんご
埼玉県/さいたま市 見沼区
0円~/月

ききゅうホーム
埼玉県/さいたま市 見沼区
0円~/月

すばる
埼玉県/さいたま市 見沼区
0円~/月

アップリフト ハレイワ
埼玉県/さいたま市 見沼区
0円~/月

アップリフト ワイキキ
埼玉県/さいたま市 見沼区
0円~/月

障がい者グループホーム アミュレット
埼玉県/さいたま市 見沼区
0円~/月